
设计风格:经典美式
常住人口:5人
住宅面积:356m²(全屋面积)
设计门店:江苏连云港名匠装饰,别墅装修公司
设计理念:当浮华散尽,唯生活才是永恒。本案在美式风格的基础上,摒弃了繁琐,繁重的格调,保留了材质、色彩上经典华贵的气质,但又在装饰的基础上简化了线条、肌理感和装饰。

连云港301平米以上别墅美式风格装修效果图
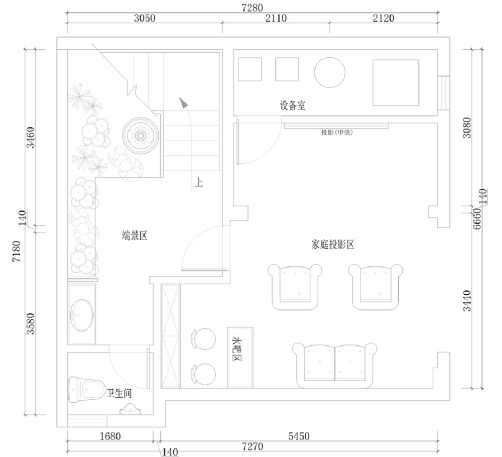
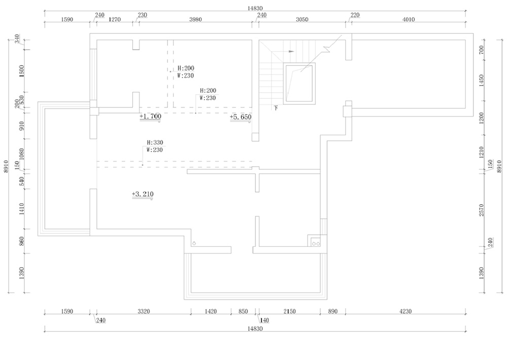
▲ 地下室平面图

连云港301平米以上别墅美式风格装修效果图
▲ 地下室布局图

连云港301平米以上别墅美式风格装修效果图
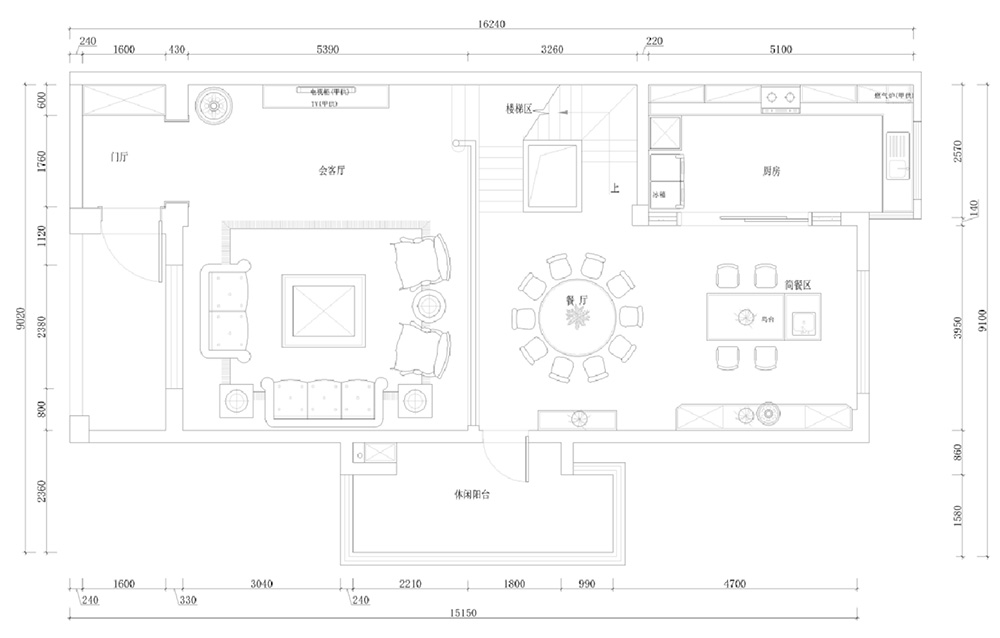
▲ 首层平面图

连云港301平米以上别墅美式风格装修效果图
▲ 首层布局图
别墅客厅装修,走过独立的玄关区域,就被富丽堂皇的客厅氛围所感染,大理石地面修饰着经典的美式风格图案,优美之中散发着高贵的气息,而两侧的背景墙同样采用了大理石石材,在灯光的映衬下散发着华丽的身姿。

连云港301平米以上别墅美式风格装修效果图
别墅客厅装修,过于富丽堂皇的设计会给人一种高高在上的感觉,缺少了生活的滋味,因此在家具的选择上,沿袭了美式传统的深色木制家具,配以淡雅色调的沙发,在沉稳深邃之中隐隐约约显露着素雅温馨,让家更有生活的气息。

连云港301平米以上别墅美式风格装修效果图
别墅客厅装修,美式经典的铁艺枝灯,为客厅带来了磅礴之感,显露着恢弘大气,气派十足。

连云港301平米以上别墅美式风格装修效果图
别墅餐厅装修,将大理石装饰延续至餐厅,不仅保证了全屋风格的统一性,也是延续了美式风格所带来的经典华丽气质,随时让时尚停留在身边。

连云港301平米以上别墅美式风格装修效果图
别墅吧台装修,餐厅身处是简餐区,大理石台面搭配敦厚的实木主题,尊贵气质油然而生,而另一侧则专属定制了一套餐边柜,用于收纳日常所需,保证了餐厅的干净整洁,营造出更加舒适的就餐环境。

连云港301平米以上别墅美式风格装修效果图
别墅餐厅装修,简约又不失情调的水晶吊灯,搭配着异形造型天花,不仅展现出匠人的精湛技艺,更是为客厅带来了优美高雅的就餐氛围。

连云港301平米以上别墅美式风格装修效果图
别墅吧台酒柜

连云港301平米以上别墅美式风格装修效果图
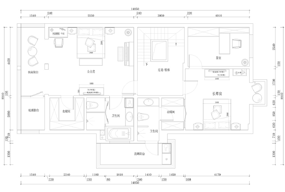
▲ 二层平面图

连云港301平米以上别墅美式风格装修效果图
▲ 二层布局图
别墅公主房装修,所有房间都在原有户型结构基础上,做了改造规划,使得每个卧室都有自己独立的衣帽间和卫生间,保证了家人生活的便利性,好设计,就是为了给家人提供更便利的生活方式。

连云港301平米以上别墅美式风格装修效果图
别墅公主房装修,高级灰与翡翠绿的组合,不仅是一种时尚的色彩搭配,加之整体室内布局及家具选择的简美风,给人一种时尚环绕身边的感觉。

连云港301平米以上别墅美式风格装修效果图
而卧室选择了实木地板装饰地面,沉稳自然的原木色,为室内增加了自然的温度,中和了灰色的冷淡,维持了家的温馨气息。

连云港301平米以上别墅美式风格装修效果图
时尚优雅的异形造型天花设计,使得公主房空间更具有层次感,简练的线条和顺畅的弧线,营造出更具有内敛、气派的空间气质。

连云港301平米以上别墅美式风格装修效果图
别墅次卧装修,老人房的整体格调更加素雅温馨,这样的环境氛围可以为父母营造更加舒适的休息空间,而且更符合家里老人喜欢的低调、不张扬的风格基调。

连云港301平米以上别墅美式风格装修效果图
别墅次卧装修,天花的造型设计也颇有艺术美感,温润的弧面加上排列整齐的线条,令空间氛围简约时尚之中彰显着温馨优雅气质。

连云港301平米以上别墅美式风格装修效果图
别墅次卧老人房

连云港301平米以上别墅美式风格装修效果图
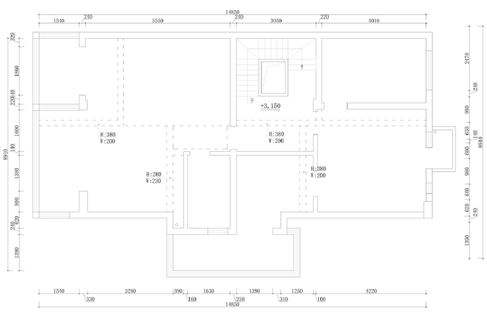
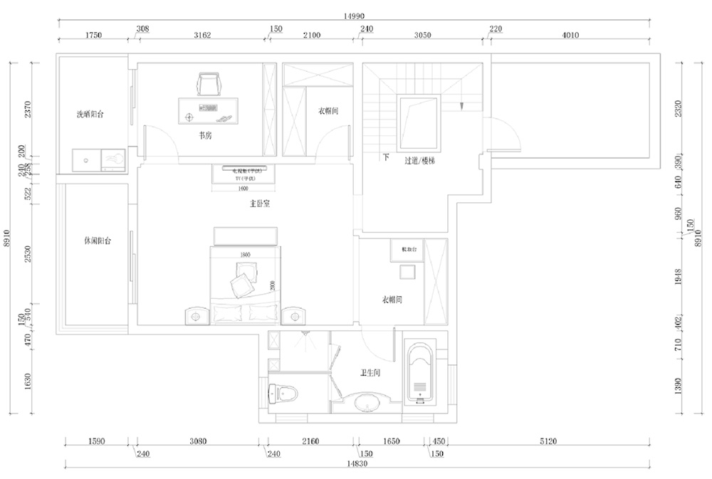
▲ 三层平面图

连云港301平米以上别墅美式风格装修效果图
▲ 三层布局图
别墅主卧装修,主卧室以高级灰为主的护墙搭配质感细腻的墙布,给人以时尚有不失稳重的居住空间。每个卧室也都设有独立的洗晒区及休闲区,让每个家庭成员的都拥有独立私密的活动空间。

连云港301平米以上别墅美式风格装修效果图
别墅主卧装修,主卧的天花造型设计也更加优美典雅,仿佛飘浮空中的花瓣,营造出一片温暖浪漫的天地。

连云港301平米以上别墅美式风格装修效果图
室内更无过多的装饰物品,整体氛围显得格外清爽温馨,实木地板更是为空间带来自然温暖的舒适感觉。

连云港301平米以上别墅美式风格装修效果图

连云港301平米以上别墅美式风格装修效果图
设计师巧妙规划,将冰冷的建筑转变为更富有人情味的华贵族气质空间,邂逅更美好的温馨生活。
红河哈尼族彝族自治州俊峰花园美式风格案例
美式风格101-200平米三居室
台州美景和府美式风格案例
美式风格101-200平米四居室
文山壮族苗族自治州中天名郡美式风格案例
美式风格101-200平米三居室
东林苑美式风格
美式风格101-200平米四居室
红河哈尼族彝族自治州骊都国际美式风格案例
美式风格101-200平米三居室
红河哈尼族彝族自治州景阳小区美式风格案例
美式风格101-200平米三居室
大理白族自治州佳诚龙苑美式风格案例
美式风格101-200平米三居室
贵港九溪墅美式风格案例
美式风格101-200平米四居室